Clicky

Denenchofu Terrace Houses
  •  View from the parking area

    View from the parking area

  •  Houses Entrance

    Houses Entrance

  •  House entrance

    House entrance

  •  Entry hall house A

    Entry hall house A

  •  Entry hall house A with staircase

    Entry hall house A with staircase

  •  Entry hall house A with staircase

    Entry hall house A with staircase

  •  Entry hall house A from kitchen entrance

    Entry hall house A from kitchen entrance

  •  Living/dining and kitchen entrance from hall

    Living/dining and kitchen entrance from hall

  •  Living/dining and kitchen entrance from hall

    Living/dining and kitchen entrance from hall

  •  Living/Dining Room

    Living/Dining Room

  •  Living/Dining room

    Living/Dining room

  •  Kitchen

    Kitchen

  •  Family Room

    Family Room

  •  Family Room

    Family Room

  •  Family Room with terrace

    Family Room with terrace

  •  Family and living dining from inner terrace

    Family and living dining from inner terrace

  •  Second floor staircase landing

    Second floor staircase landing

  •  Bedroom

    Bedroom

  •  Bedroom corridor form main bedroom entrance

    Bedroom corridor form main bedroom entrance

  •  Bedroom corridor form main bedroom entrance

    Bedroom corridor form main bedroom entrance

  •  Main bedroom

    Main bedroom

  •  Family bathroom

    Family bathroom

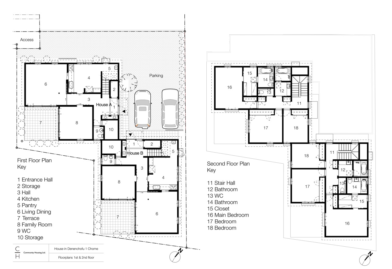
  •  Floorplans

    Floorplans

Denenchofu Terrace House

Rental houses located in the area of Denenchofu 1 chome, Tokyo. Located in a residential suburb facing a private road, a mirrored plan was chosen in order to optimize the natural light conditions as well as the accessibility to the L shaped plot.

The exterior parking area doubles as an expansion area when cars are not parked. The interior layout aims for the flexibility and easy division of the social spaces while defining a clear service core for both floors.

Finishings material selection and its expression aims to build  warm and approachable spaces that are characteristic of wooden houses.

Use: Residential  rental property               
Area: 320 m2
Architect: Community Housing Ltd.
Builder: ISA Homes
Property Manager: Community Housing Ltd.
Status: Completed in August 2008

Photos: ©Ogawa Shigeo

日本語